Sevilla
Sevilla completa la rehabilitación de uno de sus principales conventos: el futuro Espacio Santa Clara estará en 2029
Las obras para recuperar más zonas del monasterio arrancarán en 2026 y generarán un nuevo acceso, salas expositivas, un patio, una tienda o una cafetería

Recreación del Monasterio de Santa Clara de Sevilla tras su rehabilitación / Gerencia de Urbanismo

La ciudad de Sevilla acometerá un nuevo proceso de rehabilitación integral de uno de los conjuntos monásticos más antiguos e importantes de la capital. El Real Monasterio de Santa Clara, o Convento de Santa Clara, pasó de antiguo palacio almohade del siglo XII a residencia del infante Don Fadrique (hijo del monarca Fernando III de Castilla) en 1289. Después, durante más de siete siglos fue un monasterio de clausura femenina, como hogar de las monjas clarisas, que lo abandonaron en 1996. En 2001, el Ayuntamiento de Sevilla lo recuperó y lo adecuó para usos museísticos y culturales hasta lo que es hoy: el Espacio Santa Clara, dependiente del Instituto de la Cultura y las Artes de Sevilla. Pero esa restauración quedó incompleta, por lo que la Gerencia de Urbanismo va a impulsar nuevas obras de reforma para abrir todas sus estancias con una inversión de 8.528.275 euros procedentes del Plan de Inversiones y Enajenaciones del Patrimonio Municipal del Suelo 2024-2027.
El Ayuntamiento de Sevilla ha aprobado el proyecto, que se encuentra ya en licitación, para que se pueda iniciar las obras en 2026. Los trabajos se prolongarán al menos durante tres años, según los plazos del contrato, por lo que la previsión es que finalicen entre finales de 2028 y 2029. La interfención se divide en dos bloques que afectan a otros tantos ámbitos del edificio. Por un lado, el compás y edificaciones colindantes, y por otro la Puerta Reglar y las dependencias de la vida monástica. En ambas zonas se creará un nuevo acceso, salas expositivas, patios, una tienda o una cafetería.

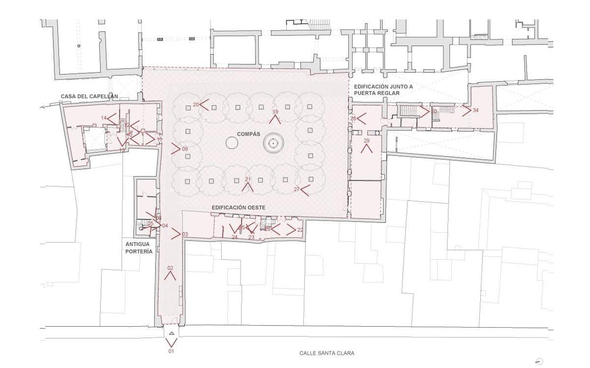
Mapa del Monasterio de Santa Clara de Sevilla / Gerencia de Urbanismo
El proyecto constructivo del compás y edificaciones colindantes, consultado por El Correo de Andalucía, explica que las obras suponen "la recuperación de este importante edificio patrimonial, abandonado y en desuso hace años". Se centrarán en el acceso al monasterio, es decir, portada, compás y edificaciones colindantes. Las actuaciones principalmente serán de estabilización estructural, eliminación de las numerosas patologías que le afectan y puesta en valor del conjunto.
Y la memoria del proyecto básico y de ejecución de la rehabilitación, consolidación y puesta en valor de la Puerta Reglar y las dependencias describe los trabajos de la zona sur del monasterio, tanto en el interior de las salas como en las zonas exteriores consideradas las antiguas huertas. Las actuaciones para la puesta en valor del conjunto serán también de estabilización estructural y eliminación de las numerosas patologías, concretamente en la estructura, revestimientos y demoliciones de cara a la adecuación para nuevos usos expositivos.
Las obras en la portada y compás de Santa Clara
Según se describe, la portada de ingreso "se encuentra en muy mal estado", por desprendimientos de los revestimientos, pérdida de material en cornisas y molduras, presencia descontrolada de vegetación y "actuaciones descontextualizadas" como acometidas de electricidad o rellenos de morteros de base cementosa. Se busca recuperar la portada como elemento de acceso al monasterio con trabajos de limpieza, carpintería, recuperación del pavimento original de losas de Tarifa o ejecución de arriates junto a los muros.

Estado actual de la portada del Monasterio de Santa Clara de Sevilla / Gerencia de Urbanismo
En cuanto al compás, que también forma parte del acceso, es un espacio libre de cerca de 800 metros cuadrados que se encuentra "en un gran nivel de deterioro" y que requiere "una actuación completa". La idea es recuperar este umbral de acceso al convento, un espacio híbrido entre el exterior del convento y la zona de la clausura. Para ello, se levantará todo el pavimento para acopiarlo y reponerlo, logrando "la imagen original del espacio", y se ejecutarán todas las redes de infraestructuras. Se desmontará la fuente y se recolocará restaurada. La vegetación se podará y resanará con alcorques adecuados, además de iluminación adecuada y una red de riego.
Además, la antigua portería -un edificio pequeño junto a la entrada del conjunto al cruzar la portada- se usará como punto de acceso, control y venta de entradas una vez se restaure por completo porque "su estado de conservación es francamente malo" y la cubierta está "en estado de ruina".

Recreación de cómo quedará el compás del Monasterio de Santa Clara de Sevilla / Gerencia de Urbanismo
Una de las edificaciones colindantes es la casa del capellán, una antigua edificación de dos plantas en la esquina del compás junto a la portada de piedra. Se levantará un nuevo edificio para ubicar los aseos públicos y la tienda. En la edificiación oeste, que en 2009 perdió la cubierta y más adelante el forjado intermedio se desplomó por la lluvia, se acabará con los años de desuso y se creará una cafetería "que dé vida a la plaza y complemente la oferta cultural con un uso estancial". Y en la edificación junto a la Puerta Reglar, al sur del compás y perteneciente a los antiguos talleres, se crearán grandes salas multiusos especialmente adecuadas para exposiciones temporales, o usos culturales anexos.

Recreación de la futura cafetería del Monasterio de Santa Clara de Sevilla / Gerencia de Urbanismo
Trabajos en la Puerta Reglar y las dependencias
Estas obras se centrarán en la zona sur del monasterio, concretamente en la zona de la Puerta Reglar y en las dependencias de vida monástica. Entre estas edificaciones se encuentran la antigua celda prioral, el claustro de las novicias, las estancias de las viviendas de vida monástica y las huertas. La Puerta Reglar, que ocupa el lado oeste del claustro, es el resultado de una sucesión de procesos constructivos que se extienden desde el origen del monasterio en el palacio de Don Fadrique hasta los últimos procesos de ampliación del monasterio de Santa Clara hasta el siglo XIX.
Con su rehabilitación se sustituirá el uso clerical de estos espacios por el expositivo. La idea es reutilizar los locutorios, la celda prioral, otras celdas, la Sala del Arco Gótico, los lavaderos o las salas de pinturas para los visitantes de los diferentes museos y zonas expositivas que conforman el Espacio Santa Clara. Se podrán exponer elementos que ayuden a entender cómo era la vida particular dentro de los conventos o mostrar pinturas ocultas durante siglos.

Estado del claustro de las novicias del Monasterio de Santa Clara de Sevilla / Gerencia de Urbanismo
En la Puerta Reglar se pondrá en funcionamiento el original acceso de las religiosas para convertirse de aquí en adelante en el nuevo acceso al Espacio Santa Clara y el control de visitantes. Desde este punto se desarrollará el nuevo recorrido museístico que conectará en la planta baja, a través del claustro, con todas las salas de exposición del monasterio. Desde el ala de dormitorios, actualmente cedido al ICAS; a los jardines y la torre de Don Fadrique; la Sala de profundis y viviendas de vida particular; el refectorio y la qubba; o la propia Puerta Reglar y patio de las novicias.
Al acondicionar y recuperar las diferentes salas, dotándolas de un uso expositivo, se aumentará la superficie museística del Espacio Santa Clara, permitiendo al visitante descubrir el conjunto monumental y su contenido. Se eliminarán las tres salas localizadas en el patio reglar, que permitirán devolver la dimensión original del espacio, así como contemplar la torre del palacio de Don Fadrique actualmente oculta tras estas. Esta torre es uno de los espacios más antiguos del monasterio y con su restauración se podrán contemplar las pinturas murales que había allí.
O los locutorios, por ejemplo, que presentan "unas condiciones de conservación deplorable", serán espacios expositivos en los que la propia arquitectura se convertirá en un elemento expuesto, además de futuras exposiciones vinculadas a los distintos espacios del monasterio. Y así con el resto de salas de las plantas baja y primera en las que, además de exponer piezas y exposiciones temporales, se podrá enseñar cómo era la vida dentro del monasterio, así como la historia y evolución del edificio.
- Muere un hombre tras un grave atropello en Sevilla: fue arrastrado desde la Alameda hasta Nervión en los bajos del coche
- El tablero de los centros comerciales de Sevilla se mueve: nuevas aperturas, transformaciones y cierres
- De un papel en blanco al diseño del nuevo Benito Villamarín: 'Lo más difícil fue integrar el estadio en La Palmera
- DIRECTO | Inundaciones en varios puntos de Sevilla y Huelva por las lluvias torrenciales de la borrasca Claudia
- Sevilla se enfrenta hoy sábado a 30 litros de lluvia por metro cuadrado en una hora, tormentas y vientos de 70km/h
- Nueva fase del tranvibús hasta la Plaza del Duque: así serán los cortes de tráfico desde el 20 de noviembre
- El restaurante de Sevilla que está en un palacio del siglo XIX: con tapas a 3 euros y su propio tablao
- Abierto el plazo para solicitar las 58 VPO de Pino Montano: precios desde 295€ y requisitos de Emvisesa